如果您正在尋找相關產品或有其他任何問題,可隨時撥打公司服務熱線,或點擊下方按鈕與我們在線交流!
方案背景:
我國是全世界大的煙草生產國與消費國,生產并消費了全球1/3的卷煙。全國煙草行業設有直屬機構58個;地市級局(公司)446個,縣級局(營銷部)2283個;卷煙工業企業和煙機制造企業105個,煙葉復烤企業56個,其他單位和企業140個。我國卷煙行業產量區域集中度非常高,主要集中在云南、湖南、河南、湖北、山東、安徽、廣東、貴州等地區。雖然煙草企業近幾年非常重視節能減排,單箱能耗指標每年都有所下降,但從整體來看,能源消費成本仍然呈現逐年上升的趨勢,能耗成本在生產成本中所占的比例也在增加。因此,注重節能減排,加強能源管控,必將會成為工業企業降低生產成本,提高效益的有效手段。
方案介紹:
適用行業:煙草行業 方案額定出力:25噸
現代意義的卷煙產品,其制作過程大致要經過煙葉初烤、打葉復烤、煙葉發酵、卷煙配方、卷煙制絲、煙支制卷、卷煙包裝七個大項的生產工藝流程,才能作為商品流轉到消費者手中。蒸汽在卷煙工業企業中主要應用于以下兩方面:一是生產工藝,包括制絲生產線的真空回潮機、潤葉機、加香加料機、水洗梗機、煙絲膨脹機、梗絲膨脹機、薄板式烘絲機、高速氣流葉絲膨脹機等;二是室內環境溫濕度控制,包括生產車間、倉庫中央空調系統,以及辦公、生活區冬季采暖系統等。

根據以往與中正鍋爐合作的多家煙草制品生產企業的項目經驗,卷煙工業企業所使用的蒸汽通常為飽和蒸汽,其制絲生產工藝對蒸汽品質要求比較嚴格,除要求蒸汽純凈、無污染、無異味、能保證企業持續生產外,各種設備對蒸汽的壓力、溫度、含水率均有相應的要求。
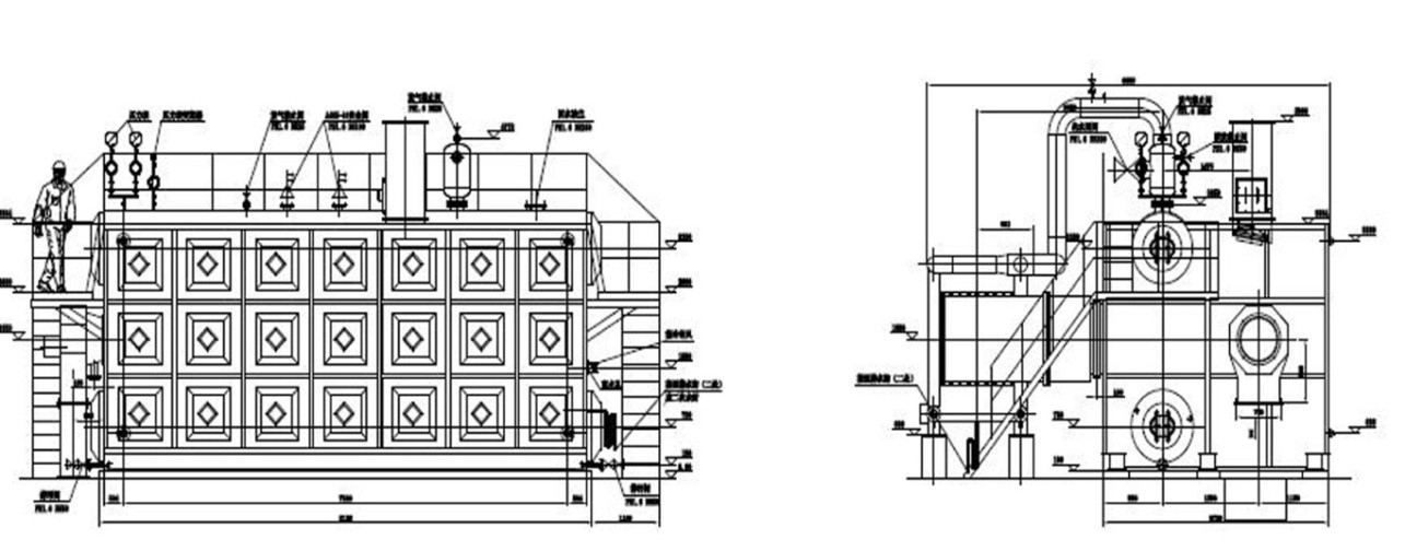
通過將中正鍋爐的客戶案例進行統計分析,對于煙草制品生產企業而言,隨著環保督查的日趨嚴格,WNS系列、SZS系列冷凝式燃氣蒸汽鍋爐的應用頻率逐漸加大,SZL系列、DZL系列燃煤蒸汽鍋爐相對減少。如一卷煙生產企業某下屬分廠年產量50萬箱,中正鍋爐的技術人員根據環保標準為其推薦了一臺25噸的SZS25-1.6-Q燃氣蒸汽鍋爐,不僅運行機械化和控制自動化程度比較高,對不同燃料具有較強的適應性,節能環保效果更佳。
方案優勢:
設備節能環保效果好
燃料具有較強的適應性
中正鍋爐研發的WNS系列、SZS系列蒸汽鍋爐選用的爐膽尺寸大,為燃料的充分燃燒提供條件,因此,對不同燃料具有較強的適應性。

設備自動化程度較高,操作簡便
先進的蒸汽鍋爐全自動控制器,全中文液晶屏,人機界面,用戶只需輕松設定,鍋爐即能按用戶要求啟停、負荷調節、自動給水等全自動運作。
文章【煙草行業年產50萬箱卷煙蒸汽解決方案】由鍋爐廠整理發布,轉載請注明:http://www.dy125.com/new/15.html