如果您正在尋找相關產品或有其他任何問題,可隨時撥打公司服務熱線,或點擊下方按鈕與我們在線交流!
燃氣鍋爐過熱蒸汽
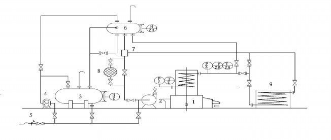
中正鍋爐是一種高效、節能的供暖設備,通過燃燒天然氣或液化氣體產生熱能,將水加熱至過熱蒸汽狀態,然后輸送至供暖系統。這種鍋爐具有穩定的性能和可靠的運行,能夠滿足家庭、工業和商業場所的熱水和供暖需求。相比傳統鍋爐,中正鍋爐的熱效率更高,排放更清潔,是現代生活中常見的暖氣設備之一。
在選擇燃氣鍋爐時,除了考慮品牌和性能外,價格也是一個重要的因素。一臺中正鍋爐的價格取決于其型號、功率和功能等因素,一般而言,中小型家用鍋爐的價格相對較低,適合普通家庭使用。而大功率工業鍋爐價格較高,但能夠提供更大的供暖范圍和更穩定的熱水供應。購買鍋爐時,消費者可以根據自身需求和預算選擇合適的型號和規格,確保既滿足需求又不會造成浪費。

燃氣鍋爐過熱蒸汽是鍋爐正常運行時的狀態之一,當鍋爐內水溫升高到一定程度時,水開始轉化為蒸汽,并達到過熱狀態。過熱蒸汽具有更高的溫度和壓力,能夠更有效地傳遞熱能,提高供暖效果。然而,過熱蒸汽也需要注意控制,過高的溫度和壓力可能導致鍋爐運行不穩定甚至發生故障。因此,在使用鍋爐時,需要定期檢查和維護,確保鍋爐處于良好的工作狀態。
總的來說,燃氣鍋爐過熱蒸汽是現代供暖系統中的重要環節,它通過高效地加熱水并產生過熱蒸汽,為用戶提供舒適的供暖體驗。選擇合適的鍋爐并定期維護是保障供暖系統正常運行的關鍵,也是節約能源和保護環境的重要舉措。希望本文能幫助讀者更好地了解燃氣鍋爐過熱蒸汽相關知識,為選擇和使用鍋爐提供參考與指導。
文章【燃氣鍋爐 過熱蒸汽】由鍋爐廠整理發布,轉載請注明:http://www.dy125.com/hyzx/12557.html